Venus Lodge
The Project
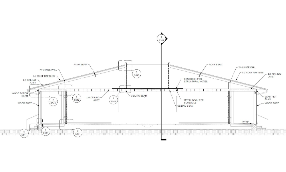
This project involves the construction of a unique 5,200-square-foot heated lodge located in Venus, Florida. The design represents a convergence of cutting-edge material science and traditional architectural aesthetics. While the lodge is visually defined by a warm, rustic “heavy timber” look—achieved through the strategic use of timber columns and beams—the core structure is built using the innovative Hercu-Wall system, setting a new standard for modern lodge construction.
The Client
The client, working with the architectural vision of Thomas and Denzinger, desired a facility that captured the classic, inviting atmosphere of a timber-framed lodge. However, they also required a building envelope that offered superior performance and longevity. The goal was to balance the visual warmth of wood with the structural resilience of concrete, creating a retreat that is both beautiful and built to last.
The Challenge
The primary challenge for the engineering team was adopting and integrating a relatively new building product into a complex design. Because Hercu-Wall was a new system for the team, it required a rigorous learning and validation process to ensure it was applied correctly. The engineers had to calculate how this lightweight concrete wall system—which acts as a hybrid of concrete strength and stud-framing ease—would interface structurally with the heavy timber elements that define the building’s aesthetic.
The Solution
To address this, the engineering team, led by Taylor Durtchi on calculations, employed a suite of advanced design tools. They utilized the firm’s internal spreadsheet system specifically for lateral design, alongside Keysheet and Enercalc, to validate the Hercu-Wall integration. This meticulous engineering ensured that the lightweight concrete system could support the architectural vision, effectively marrying the concrete shell with the timber accents.
The Improvements
The use of the Hercu-Wall system represents a significant improvement over traditional masonry or wood framing. By utilizing this lightweight concrete wall system with hollow-core concrete studs, the project achieves the strength and durability of concrete with the installation ease of conventional framing. This choice dramatically enhances the building’s performance profile, providing superior fire resistance, sound attenuation, and energy efficiency that a standard build could not match.
The Results
The project is a successful testament to how innovative materials can transform building methodologies. Through close collaboration with the General Contractor, Elev8, and the light gauge specialists at Wolf Construction, the team delivered a structure that is both strong and efficient. The drawings, expertly created by Daniela, provided the roadmap for a smooth installation, proving that Hercu-Wall is a smart, viable choice for modern, high-performance construction.
Summary
-
The Venus Lodge illustrates the powerful potential of hybrid construction. By combining the innovative Hercu-Wall lightweight concrete system with a traditional heavy timber aesthetic, the team created a 5,200-square-foot lodge that is energy-efficient, fire-resistant, and visually stunning. The project proves that modern innovation and rustic charm can work together seamlessly.












