New Riverside Buildings A and B
The Project
This project comprises the new construction of Buildings A and B, two commercial structures located in the rapidly developing New River corridor between Bluffton, SC, and Savannah, GA. The project serves as a case study in resilience, balancing high architectural expectations with the strict economic realities of the post-COVID construction market. The resulting wood-framed buildings provide a high-end aesthetic while maintaining structural efficiency in a high-wind hurricane zone.
The Client
The client was developing a property in a high-profile area subject to rigorous review board oversight. They faced a “perfect storm” of challenges: a tight budget, a strict schedule, and strong opinions from the local authorities regarding the building’s appearance. They needed a design and construction team that could navigate these competing demands without stalling the project.
The Challenge
The primary challenge was delivering a premium product within a constrained environment. The post-COVID landscape meant budgets were tight and schedules were non-negotiable. Furthermore, the structural design had to account for significant hurricane wind loads while satisfying the aesthetic demands of the review board, who expected the visual weight and warmth of heavy timber construction—an option that was originally planned but ultimately proved too costly.
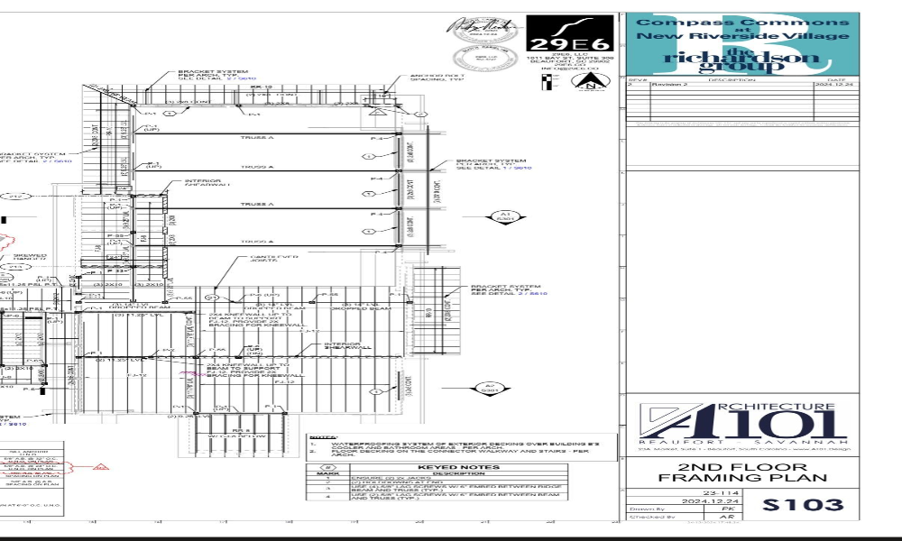
The Solution
To resolve the conflict between the budget and the aesthetic requirements, the engineering team, led by Harshil Devani, implemented a smart value engineering solution. Instead of expensive heavy timber trusses, the team designed a system of metal plate wood trusses, tripled and spaced at eight feet on center. A wood veneer was then applied to these light-framed trusses, successfully mimicking the look of heavy timber at a fraction of the cost. The structural design was streamlined using the firm’s Key Sheet method, with Enercalc used for component checks and a proprietary spreadsheet verifying the lateral design.
The Improvements
This project is defined by the team’s “pure tenacity.” By streamlining the engineering process and utilizing efficient tools like Revit and Enercalc, the team kept the project moving despite the external pressures. The substitution of the veneered trusses for solid timber was a critical improvement that saved the budget without compromising the architectural integrity or the structural safety required for the hurricane zone.
The Results
The project was successfully kept on track, meeting both the strict schedule and the tight budget. This success was driven by the vital teamwork between 29E6, A101, and Fraser Construction. The final Revit drawings, produced by Daniela Digori, facilitated a smooth construction process. Ultimately, the project stands as a testament to resilience, proving that with tenacity and smart engineering, a team can deliver excellence even in a challenging market.
Summary
-
New Riverside Buildings A and B demonstrate how tenacity and value engineering can keep a project on track. By replacing heavy timber with wood-veneered metal plate trusses, the team satisfied strict review boards and budget constraints while engineering a resilient structure for a high-wind hurricane zone.










