Bluewater Market
Bluewater Market
The Project
This project involved the strategic modernization of an existing 1980s-era gas station located near Chechessee, South Carolina. Rather than a complete demolition, the project focused on breathing new life into the structure through a targeted architectural “makeover.” The centerpiece of this renovation is a new, modern entry structure designed to enhance the building’s curb appeal and bring its aesthetic into the 2020s.
The Client
For years, this station was the only option on the road, but the arrival of a “bigger name” competitor stirred the pot and changed the local market dynamics. The owner realized it was time to step up and invest in the property. They sought a cost-effective way to refresh the station’s image and ensure it remained competitive against the new rival without the expense of a ground-up rebuild.
The Challenge
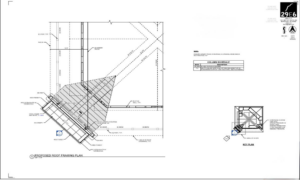
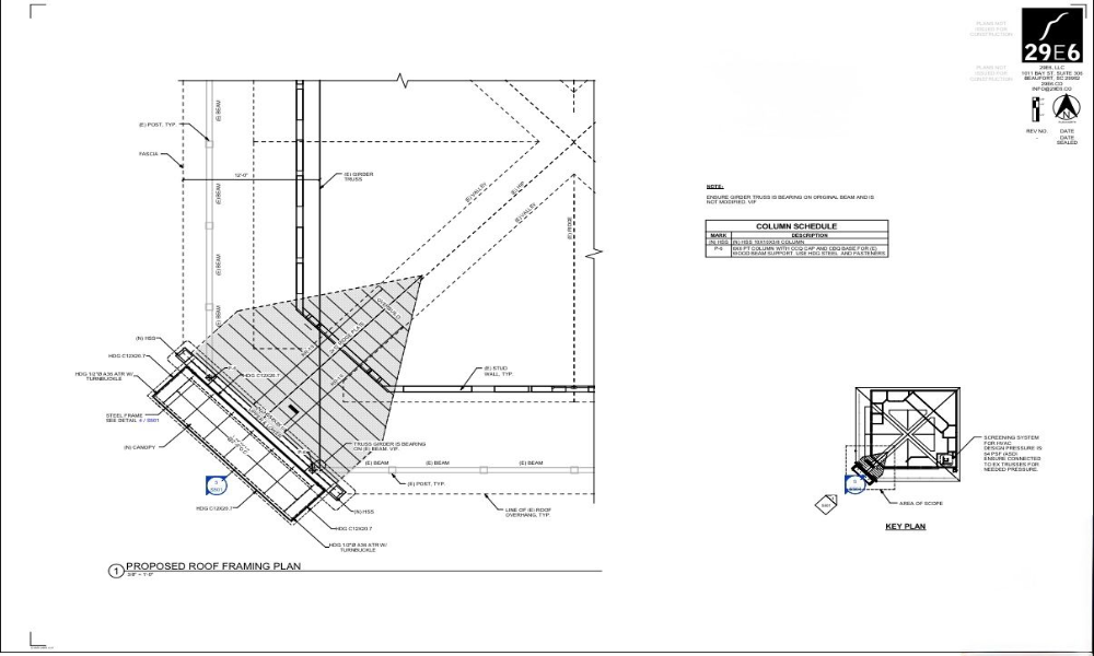
The primary challenge was to design a significant architectural feature—a new entry—that could be added to the existing building with minimal disruption. The new structure needed to be visually striking to provide the desired “fresh look,” but it also had to be structurally independent and robust. The goal was to create a modern facade that enhanced the good bones of the original building without necessitating complex retrofits to the existing structure.
The Solution
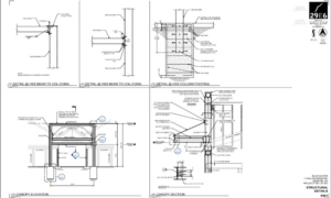
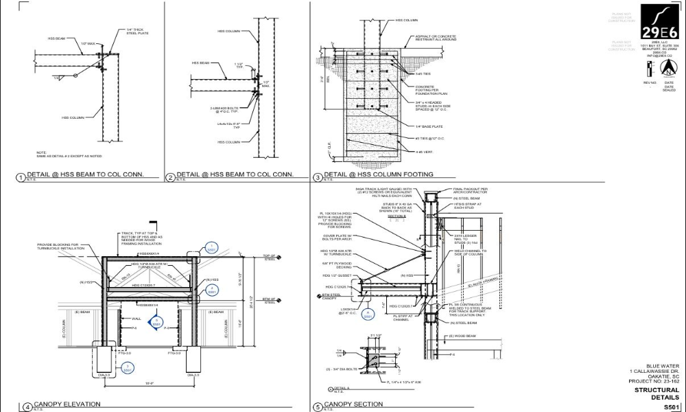
To achieve this, the team designed a “goal post” style entry structure using a combination of steel tubes and light-frame wood. The engineering approach, handled by Saurabh Pandya and David Naus, utilized a cantilevered column system embedded deeply in concrete. This design allows the structure to stand strong on its own, relying on the existing building only for minor residual support. Calculations were efficiently managed using the simple post base equation from the IBC, facilitated by ENERCALC.
The Improvements
This project serves as a prime example of how simple changes can completely transform a property. By focusing on a high-impact “makeup” application—the new entry—the team avoided the waste and cost of tearing down a functional building. The design collaboration between Twingi Architecture, Brunson Construction, and the engineering team resulted in a streamlined solution that maximized impact while minimizing construction complexity.
The Results
The renovation was executed flawlessly, bringing the station firmly into the modern era. The new entry, drafted in Revit by Daniela Digori, provides a crisp, inviting focal point that redefines the customer experience. Chase Hiers and the Brunson Construction team delivered a high-quality finish that successfully refreshed the property, allowing the owner to compete effectively with the new competition down the road.
Summary
-
This gas station makeover near Chechessee, SC, proves that targeted renovations can be as powerful as new construction. By adding a structurally independent, cantilevered steel and wood entry, the team transformed a tired 1980s building into a modern competitor. The project highlights the value of smart, simple engineering solutions in revitalizing existing commercial assets.












