Maybank
The Project
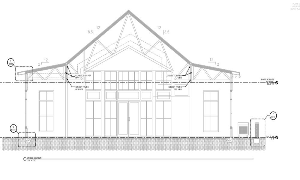
This project, part of a three-building development on Maybank Highway, showcases the efficiency of modern hybrid construction. The structure is designed with load-bearing light gauge metal walls supporting wood roof trusses, utilizing a double top plate connection to bridge the two materials. Strategic steel columns were also integrated into the design to provide necessary support and ensure the ground level remained compliant as a non-combustible space.
The Client
The client and development team aimed for a streamlined construction process without sacrificing quality or design integrity. They required a partner who could navigate the subtle complexities of the design—which appeared simple on the surface but contained “tough nuances”—to deliver a durable commercial asset on a tight schedule.
The Challenge
The primary challenge was ensuring that the “tough nuances” of the design did not translate into construction delays. The project required a high level of detail to ensure the hybrid light gauge and wood truss system fit together perfectly on-site. The goal was to avoid the typical “headaches” and slow-downs associated with framing complex connections in the field.
The Solution
The solution lay in early, intense collaboration and a rigorous shop drawing process. The engineering team worked closely with LFK Architects and Rival Design Build’s light gauge framing shop long before construction began. This “boring” but critical planning phase allowed the fabricator to pre-cut every single light gauge stud to the exact required length. Calculations were handled via the firm’s Key Sheet method and Enercalc, while Revit was used to coordinate the drawings.
The Improvements
This project highlights the value of “front-loading” effort. by investing significant time in the design and shop drawing phase, the team eliminated guesswork on the job site. The decision to use pre-cut studs was a significant improvement over standard field-cutting methods, streamlining the framing process and drastically reducing waste and installation time.
The Results
The results of this collaborative approach were immediate and impressive. The roof trusses were installed in a record-breaking four hours—a task the superintendent noted would typically take a full day. The pre-cut framing went up smoothly, and the entire build process benefited from the “tedious” but effective planning work. Harold, the construction support PM, helped oversee a process where teamwork transformed a challenging design into an incredibly efficient build.
Summary
-
Maybank Building B on Johns Island proves that early collaboration and detailed shop drawings lead to massive construction efficiencies. By coordinating closely with Rival Design Build to pre-cut studs and plan every detail, the team achieved a 4-hour roof truss installation, turning a nuanced design into a smooth, high-speed success.















