Small Retail Building
The Project
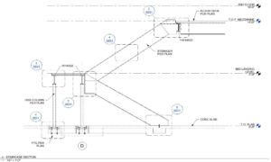
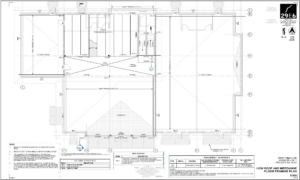
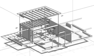
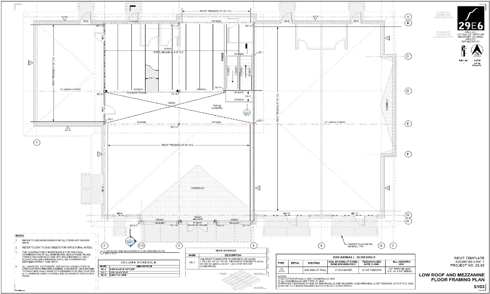
This project involves the new construction of a small retail building located in the greater Atlanta area. The structure is designed for durability and efficiency, utilizing a primary structural steel frame. The elevated floor system consists of concrete over a metal deck, supported by wide flange joists spaced at approximately four feet on center, which are also employed for the roof structure. The building envelope features light gauge framing for the walls, creating a robust shell for the retail space.
The Client
The client engaged the team in 2023 but required an extended period to “massage” the design and finalize their plans. This phase was critical for aligning the project scope with their specific needs. By early 2025, the client had solidified the vision and established a strict scope and an urgent “ASAP” deadline, requiring the design team to pivot instantly from a holding pattern to full execution.
The Challenge
The primary challenge was managing a “moving target.” The project began with a fluid design phase that stretched over two years, followed abruptly by a demand for immediate delivery. This stop-and-start dynamic can often lead to misalignment or rework, requiring a team that stays agile and prepared to execute high-quality engineering under significant time pressure once the green light is given.
The Solution
To navigate the shifting timeline, the team relied on a proven process and a strong relationship with the architect, Brian Coffman of MASS. The structural approach was mapped out early using a preliminary key sheet (conceptual design), which kept all stakeholders aligned even during the delay. When the deadline hit in 2025, the engineering team—led by Harshil, Sagar, and Andy—was ready. They implemented a hybrid lateral system, primarily utilizing wood shearwalls over light gauge framing with supplemental moment frames, validated through RISA and ENERCALC.
The Improvements
The project illustrates the value of early conceptual alignment. By sharing the preliminary structural strategy upfront, the team ensured that “feedback was key” and incorporated it before the rush began. This allowed the drafting team, led by Daniela in Revit, to move efficiently when the project reactivated. The rigid quality assurance process, finalized by Taylor, ensured that despite the speed of the final push, the design remained precise and code-compliant.
The Results
The project is now ready to “go vertical,” successfully transitioning from a long conceptual phase to active construction. The seamless collaboration between 29E6 and MASS allowed the team to meet the sudden 2025 deadline without friction. The result is a fully coordinated, cost-effective steel and light gauge structure that meets the client’s finalized scope and schedule.
Summary
-
This retail building near Atlanta demonstrates how to efficiently design a “moving target.” By establishing a clear structural concept early and maintaining close collaboration with MASS, the team successfully navigated a two-year delay followed by an urgent deadline. The final design features a robust steel frame with a hybrid lateral system, delivered on time and ready for construction.














