Clubhouse
The Project
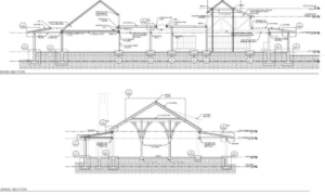
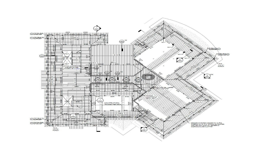
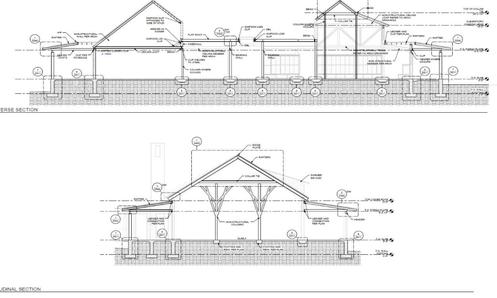
This project involves the new construction of a distinct clubhouse facility near Venus, Florida. Designed to be a fully non-combustible structure, the building utilizes a comprehensive load-bearing light-gauge steel system for the walls and roof framing, topped with a durable 0.6-inch thick metal roof deck. The architectural design is defined by its “dynamic” roof lines, which create a visually striking profile but introduce significant complexity to the structural frame.
The Client
The client, in collaboration with Thomas and Denzinger, sought to create a durable, low-maintenance facility that could withstand the Florida climate while offering a modern aesthetic. The requirement for non-combustible construction was a key driver, pushing the design toward a high-performance all-steel solution that ensures longevity and safety for the community it serves.
The Challenge
The primary engineering challenge lay in the intersection of the complex architectural form and the specific material constraints. The “dynamic” roof lines created non-standard load paths that are difficult to resolve with standard framing methods. Furthermore, designing a complete load-bearing light-gauge system requires navigating specific structural nuances that differ significantly from traditional steel or wood framing, particularly when accounting for the “decent” wind loads characteristic of central Florida.
The Solution
To address these complexities, the engineering team, led by Taylor Durtchi, implemented a rigorous design strategy using specialized tools. The lateral system was engineered using cold-form strapping and X-braces to resist wind forces. The team utilized Simpson CFS steel software to perform precise calculations for all light-gauge members, ensuring that the intricate roof geometry was fully supported and the load paths were clearly defined.
The Improvements
This project marked a significant step forward in the firm’s digital workflow. While the proprietary KeySheet method in Bluebeam was used for the initial design setup, the team fully adopted Bluebeam Studio for the redline and review process. This shift to a real-time, cloud-based collaboration environment streamlined communication between the design and drafting teams, led by Daniela Digori, ensuring that the complex details of the light-gauge system were coordinated with greater speed and accuracy than ever before.
The Results
The result is a fully engineered, robust, and non-combustible clubhouse that meets the architect’s ambitious visual goals. The drafting team successfully produced a precise set of Revit drawings that translate the dynamic roof lines into a buildable reality. The project stands as a successful example of how advanced software tools and collaborative workflows can simplify the delivery of complex light-gauge structures.
Summary
-
The Venus, Florida clubhouse demonstrates the effective use of load-bearing light-gauge steel to achieve complex architectural forms. By leveraging Simpson CFS software and a streamlined Bluebeam Studio workflow, the team successfully engineered a non-combustible facility with dynamic roof lines, meeting the challenges of Florida wind loads with precision and efficiency.











