Church Addition
The Project
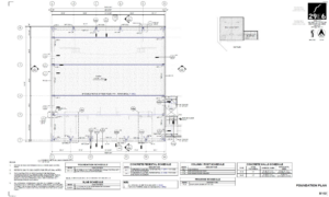
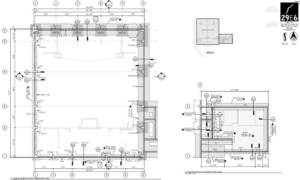
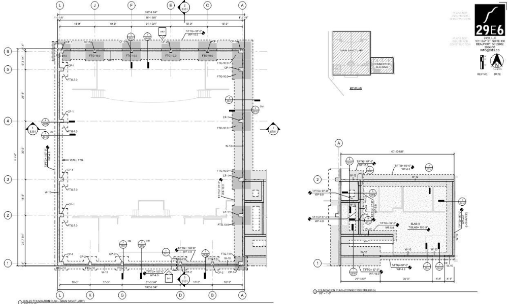
This project involves the design and construction of a significant addition to an existing church in Eastern Ohio. The new facility is primarily constructed using a pre-engineered metal building (PEMB) system, chosen for its efficiency and volume. The addition features a wood-framed stage engineered to support a substantial 100 psf assembly live load. A critical component of the design is a new connector section, which bridges the gap between the existing structure and the new addition, housing an elevator and stairwell to navigate the site’s elevation changes.
The Client
The client is an active church community in Eastern Ohio. This project held special significance for the engineering team, as one of the team members, Kenny, is a member of this specific congregation. This personal connection drove the team’s commitment to delivering a high-quality facility that would serve the community well, particularly when stepping in to assist with a tight deadline.
The Challenge
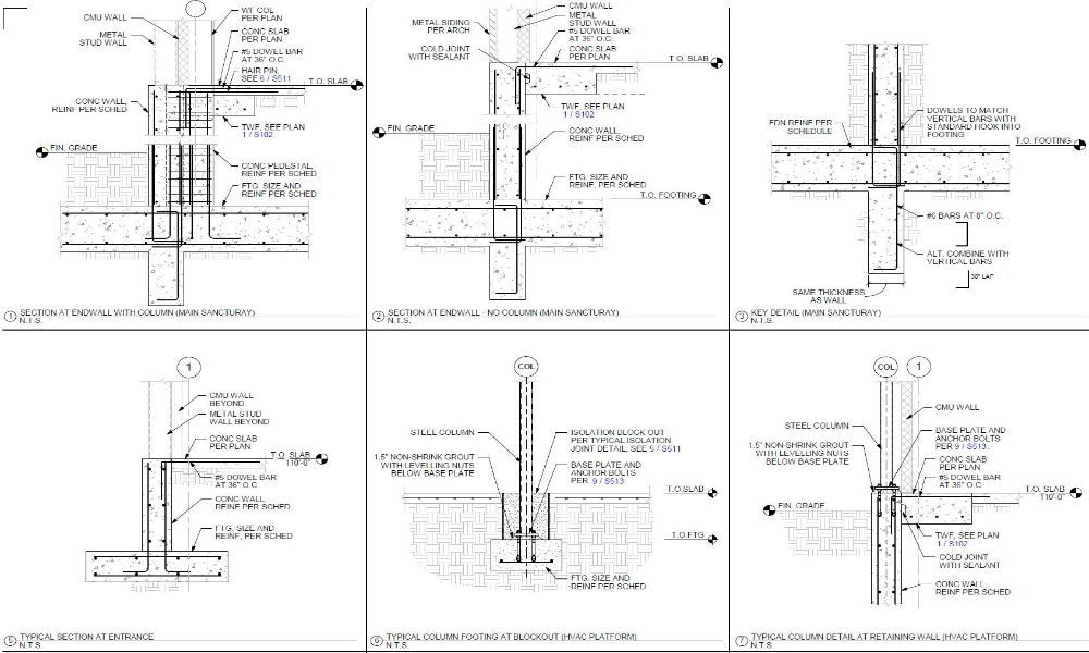
The project faced distinct environmental and topographical challenges. Located in Eastern Ohio, the design had to rigorously account for a cold climate, necessitating deep frost depths for foundations and robust engineering for heavy snow loads. Additionally, the church is situated on a “rather hilly site,” creating a complex grade difference between the old and new structures that required a seamless vertical transition.
The Solution
To address the site conditions, the engineering team, led by Tamim Said, designed a specialized foundation system for the PEMB using concrete walls and pier pilasters. To manage the outward thrust from the rigid metal frames, steel ties were integrated across the slab. A multi-level connector building was engineered to resolve the hill’s elevation change, utilizing stairs and an elevator for accessibility. Despite the focus on gravity loads like snow, the team also ensured the structure was fully braced against lateral wind and seismic forces.
The Improvements
The team utilized a suite of specific design tools to maximize efficiency and accuracy. A structural charrette kicked off the process, followed by the use of Revit for precise drawings and Bluebeam for calculations. Specialized tools like Simpson CFS were used for light gauge design, while an internal Excel calculator handled the complex PEMB foundation forces. Enercalc was employed for the wood and concrete elements. This rigorous adherence to the firm’s “6 E’s and 3 R’s” process allowed the team to meet the tight deadline without compromising quality.
The Results
The project was a success, delivering a robust, code-compliant addition that meets the specific demands of the Ohio climate. With drawings produced by Jigna and critical support from Kenny, the team provided APG Architects with a seamless structural package. The result is a durable new space for worship and community gathering that effectively navigates the challenging terrain.
Summary
-
This Eastern Ohio church addition demonstrates how to successfully navigate the challenges of a cold climate and a hilly site. By engineering a robust PEMB foundation with thrust ties and designing a vertical connector with an elevator, the team solved the site’s topographic constraints. The project highlights the value of local licensure and personal commitment to community-focused construction.











