Ironline Warehouse
Ironline Warehouse
The Project
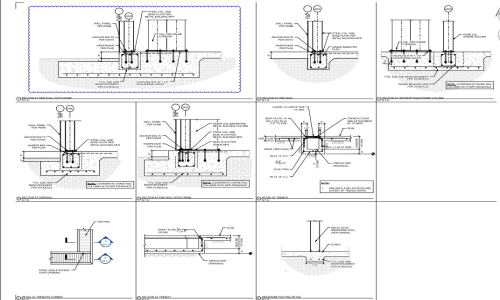
Completed in 2024, the Ironline Warehouse is a substantial 50,000-square-foot industrial facility located in Yemassee, South Carolina. The structure serves as a specialized fabrication plant for Ironline Metals, dedicated to the production of light gauge framing, specifically studs and joists. The facility is designed as a pre-engineered metal building (PEMB) but is distinguished by its integration of a heavy-duty, freestanding crane rail system used to transport materials across the expansive floor plan.
The Client
Ironline Metals commissioned this facility to expand their fabrication capabilities. Their operational requirements necessitated a building that could house heavy manufacturing equipment and support the dynamic movement of raw materials. They needed a design partner capable of coordinating complex industrial components, particularly the interaction between the building shell and the independent crane system, to ensure a seamless workflow.
The Challenge
The most significant engineering challenge was managing the immense dynamic forces generated by the freestanding crane rail. When a 5,000-pound crane system comes to a sudden stop, the resulting impact creates massive overturning moments that threaten structural stability. Additionally, the project is located in a coastal zone, requiring the building to resist significant wind uplift. During construction, the team also encountered a “tricky situation” regarding the physical coordination between the independent crane rail foundations and the main building foundations, requiring immediate and precise resolution.
The Solution
To neutralize the overturning moments caused by the crane’s operation, the engineering team designed massive “foot plates” supported by twelve-foot-square concrete footings. These substantial foundations anchor the independent crane rail against dynamic loads. The team, led by project manager Corbin Collier, PE, and Billy Evans, utilized standard spreadsheets validated by Risa 3-D analysis to ensure the design was robust. Furthermore, the foundation was meticulously detailed to support both the PEMB columns and the crane rail, ensuring the stability of the entire system in this coastal environment.
The Improvements
A rigorous emphasis on quality assurance defined the success of this project. The team implemented a comprehensive special inspections program to ensure every detail matched the engineering intent. This included checking concrete mixes and meticulously reviewing shop drawings. David Naus, the team’s “RG” (Retired Guy), played a pivotal role in organizing this extensive documentation, ensuring that the final report on special inspections was accurate and that the building was compliant in every respect.
The Results
The project was successfully delivered through a strong collaborative effort involving Master Steel LLC, Fraser Construction, and Court Atkins. The 29E6 team, with drawings created by Daniela, provided the structural backbone for the facility, including the design of light gauge walls and ceilings for the mezzanine and office spaces. The result is a high-performance industrial warehouse that safely integrates complex heavy machinery with a standard metal building shell.
Summary
-
The 50,000-square-foot Ironline Warehouse demonstrates the successful integration of heavy industrial equipment into a pre-engineered metal building. By engineering massive 12-foot-square footings to handle the dynamic loads of a freestanding crane rail and implementing a strict special inspections protocol, the team delivered a durable, coastal-ready fabrication facility.
















