Daufuskie Island Residence
The Project
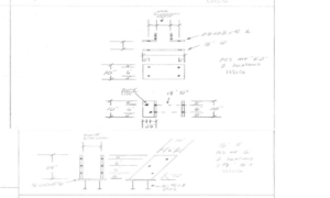
This custom residence on Daufuskie Island serves as a prime example of how even smaller residential projects can demand significant structural sophistication. The home is defined by its intricate architectural geometry and high-end material palette, specifically the use of stunning Cypress wood. The design breaks away from standard vertical framing, incorporating challenging features such as sloped posts, significant cantilevers, and custom wood brackets that required specialized steel connections to realize the architect’s vision.
The Client
The client approached this project with a clear preference for quality over cost. They sought an engineering partner who would pay meticulous attention to detail rather than simply providing a “stamp” for the permit office. Their satisfaction was paramount, and they ultimately described the structural engineering execution as “perfect,” validating their decision to invest in a team capable of handling complex, non-standard design elements.
The Challenge
The project presented a suite of structural challenges that often “keep engineers up at night.” The primary difficulty was the integration of sloped posts, which introduce complex horizontal and vertical force vectors that standard framing cannot easily resolve. This geometry was further complicated by the need to support large cantilevers and heavy timber elements, requiring a lateral system capable of stabilizing the structure without compromising the aesthetic beauty of the exposed wood.
The Solution
To address these geometric complexities, the engineering team, led by Taylor, implemented a rigorous design strategy. A steel moment frame was introduced to provide the necessary lateral stability that the wood framing alone could not achieve. Custom steel connections were engineered to tie the wood brackets and sloped posts securely to the structure. The design was validated using the firm’s proprietary Key Sheet method, along with a suite of analytical tools including Bluebeam, Enercalc, and a dedicated lateral design spreadsheet.
The Improvements
This project highlights the value of “spot on” engineering over the “cheapest” option. By running detailed calculations and preparing precise drawings rather than relying on generic details, the team ensured the structural integrity of the complex forms. This depth of analysis allowed for the seamless integration of steel and wood, ensuring that the structural supports enhanced rather than detracted from the visual impact of the Cypress wood finish.
The Results
The project was a resounding success, delivering a home that is as structurally sound as it is beautiful. The meticulous engineering allowed the ambitious architectural features—from the sloped columns to the cantilevered decks—to be built exactly as envisioned. The client’s feedback confirmed that the extra effort and attention to detail paid off, resulting in a high-quality, resilient coastal home.
Summary
-
The Daufuskie Island Residence stands as a testament to the importance of detailed structural engineering in custom home building. By successfully navigating the challenges of sloped posts, steel moment frames, and complex connections, the team delivered a “perfect” solution for a demanding client. The project proves that choosing the right engineering partner is essential for building something truly great.












